
Unitech Housing at Sector-117, Noida
Weaving the New into the Existing
Client
Unitech Housing
Location
Sector 117, Noida
Site Area
64.64 Acres.
Status
2023 – 2026
Unitech Housing
Location
Sector 117, Noida
Site Area
64.64 Acres.
Status
2023 – 2026
Unitech Housing at Sector-117, Noida
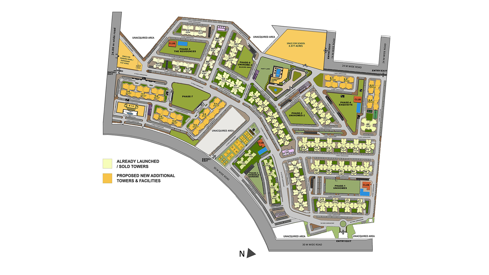
Situated in Sector 117, Noida, this project began as a flagship development of Unitech Ltd. Today, under the aegis of the highest authorities of the country, it finds new life. The task: to introduce new architecture into an existing community without disrupting its soul.
The master plan proposes 4 new towers (ST+14) and 8 new towers (ST+17) , complementing the existing 46 towers that already define the site. To this, we have added a Commercial Plaza and a large, fully equipped community hall—new anchors for a growing neighborhood.
The design challenge was one of integration. How do you insert the new into the old without erasing what came before? How do you feel contemporary while belonging completely?
The answer lay in listening to the existing context. The new towers are positioned to complete the original layout, not compete with it. Their proportions, their rhythm, their relationship to open spaces—all calibrated to feel like they were always meant to be there. Fresh, contemporary, yet entirely at home.
“The challenge wasn't building new. It was making the new feel like it had always been there.”
- SANDEEP R TANDON












